Реклама

Продам Кирпичный Дом S - 206 кв, м, на ул, Юбилейная/ ул, Вавилова

5 950 000 руб. от 21 октября 2025 г.

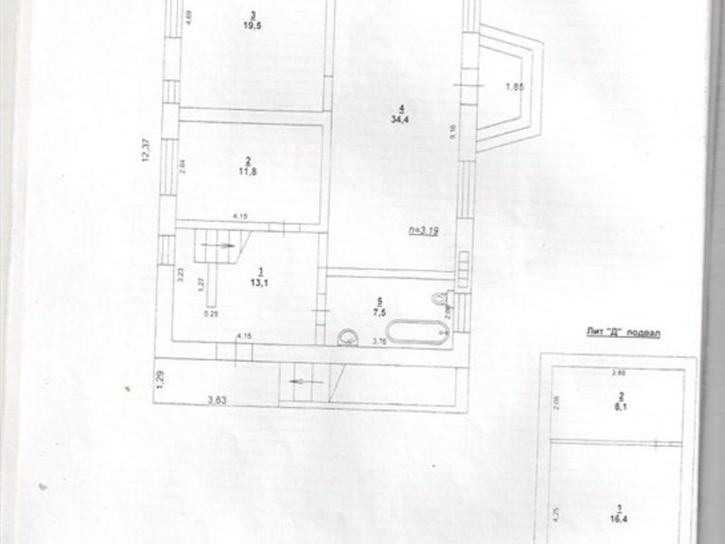
Предлагаем к Продаже Кирпичный Дом S - 206 кв. м. в Октябрьском районе, ул. Юбилейная/ ул. Вавилова (кольцо). Ровный участок земли - 6, 6 Сотки. Дом введен в эксплуатацию в 2012 году. S 206/150/13. Архитектурно Дом выполнен в Два этажа (1 Этаж + мансардный этаж S - 95, 3 кв. м. ). Большой подвал. Состояние Стройвариант частично под Чистовую отделку. Дом построен качественно и основательно, только с использованием качественных стройматериалов. Фундамент - армированный бетон, глубиной - 2, 4 метра, толщиной - 50 см. Стены в Два Кирпича. Ж/Б межэтажные перекрытия. Крыша металлочерепица. В Доме два полноценных Входа, высокий уровень расположения первого этажа над землей. Все Удобства ! ! ! Водоснабжение центральное, Газ введен в Дом по проекту. Канализация - большая яма. Свет. Индивидуальное отопление -2-х контурный Газовый Котел. Металлопластиковые окна. Мансардный этаж без перегородок - есть возможность оформить комнаты под свой Вкус ! ! ! В Доме Три Комнаты ( S 34, 4 + 11, 8 + 19, 5) кв. м. + мансарда. Высокая мансарда. Въезд для 2-х Авто. Большой просторный Двор с плодовыми деревьями - орех, кизил, вишня, виноград, айва, яблоня, черешня. Вся развитая инфраструктура рядом. До ул. Вавилова 350 - 450 метров. Новый, красивый, качественный Дом ! ! ! Строили для Себя ! ! ! Продается всвязи с обстоятельствами. Цена 5950 т. р. Разумный Торг. Отличный Дом для Вас и Вашей семьи. АН

Площадь, м2: 206.м2
Месторасположение: ул. Юбилейная

Контактное лицо

Андрей Россия, Ростовская область, Ростов-На-Дону

Адрес этого объявления:
  • © 2015-2025 Dibi.ru
  • |
  • Обратная связь
  • |
  • Сменить город
  • |
  • Правила подачи объявлений
  • |
  • Пoльзовательское соглашение